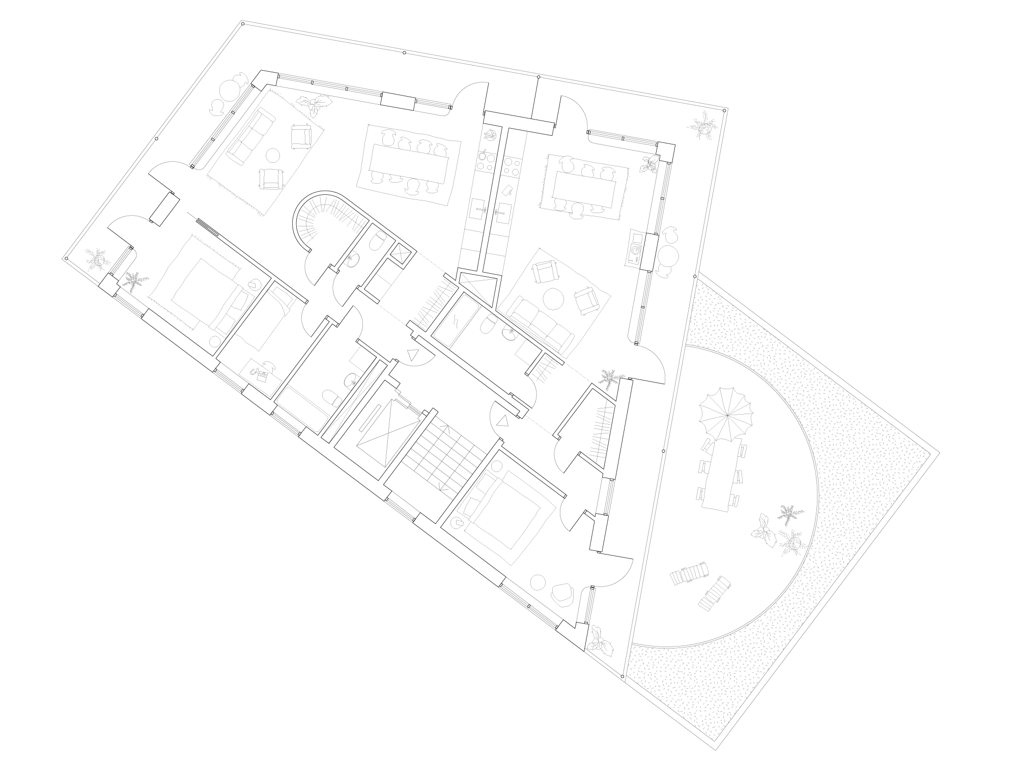
#1809
DAMMEN


Location:

NACKA


Type:

HOUSING


Size:

1 700 M2


Status:

INVITED COMPETITION



Sitting on a dramatic slope overlooking the Stockholm inlet, this compact apartment building makes full use of its modest footprint by means of a slender frame and generous balconies wrapping the full perimeter of each floor. Thin slabs with minimal columns, a barely noticeable netted railing and full-height windows provide unhindered water views, while also extending the living space outwards. The façade is clad with wood panelling, charred with the traditional Shou Sugi Ban technique. The dark façade is offset by a light, airy interior, where floors, window frames and sills in solid oak add warmth and tactile qualities.


KOCKSGATAN 56    116 29 STOCKHOLM