︎
KRUPINSKI / KRUPINSKA
ARCHIVE
KRUPINSKI / KRUPINSKA
ARCHIVE
#1608
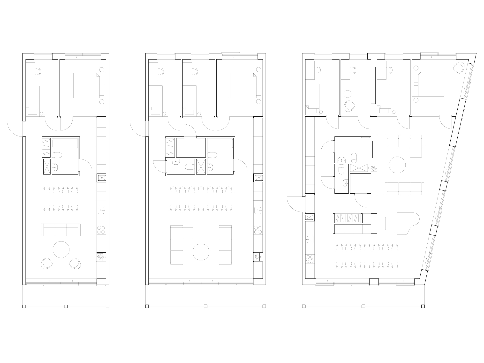
ELDKVASTEN
Location:
VÄSJÖN
Type:
HOUSING
Size:
12 000 M2
Status:
INVITED COMPETITION
INFO@KKARK.COM
INSTAGRAM
INFO@KKARK.COM
+ 46 (0) 736 719 141
KOCKSGATAN 56 116 29 STOCKHOLM